ecoheat Aura - Montage et installation
| 2 Informations relatives aux produits |
2.2 Description du produit | Le produit est un chau age infrarouge qui transmet de la chaleur aux objets par le biais d‘ondes infrarouges. Les objets chauds transmettent à leur tour de la chaleur à l‘environnement. Le produit doit être utilisé en combinaison avec le thermostat sans fi l ecoheat Sensus. Le produit convient aussi bien pour un montage mural que pour un montage au plafond. La température de surface maximale à une température ambiante de 20 °C est de : 110 °C (115 °C pour un montage au plafond).
| Structure du produit |  On y voit le dos d‘un chau age au format 120 x 60 cm.
Légende :
1 Chau age à infrarouge 2 Support mural (support en V) 3 Récepteur radio 4 Fiche de prise | Marquage CE
 | Le marquage CE atteste que les produits répondent, conformément à la plaque signalétique, aux exigences essentielles des directives correspondantes. |
|
| 3 Montage |
| 3.1 Vérifi er l‘étendue de la livraison | Vérifi ez que le contenu de la livraison est complet et intact.
| Nombre | Désignation | | 1 pièce | Chau age infrarouge avec récepteur prémonté, câble de raccordement et supports muraux (supports en V). | | 1 pièce | Gabarit de montage. | | 1 pièce | Kit de fi xation standard. | | 1 pièce | Manuel d‘installation et d‘utilisation. |
|
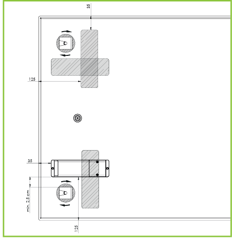
3.2 Dimensions | 
 |
3.3 Lieu d‘installation | - N‘installez pas le produit directement en dessous d‘une prise murale.
- N‘installez pas le produit dans des locaux présentant une humidité excessive.
- N‘installez pas le produit en dehors de locaux fermés ou dans des locaux où il est exposé à l‘eau ou à l‘humidité, par exemple dans une piscine.
- N‘installez pas le produit ni sa prise de raccordement avec les câbles dans les zones de protection 0, 1 et 2 de locaux humides.
- Veillez à ce que la température ambiante soit d‘au moins 17 °C et gardez les sols et les radiateurs propres afi n d‘éviter les dépôts de poussière noire (e et de fogging).
|
3.4 Distances minimales |  - Ne descendez pas en dessous de la distance minimale (C) entre la paroi arrière et le plafond/mur, qui est défi nie par les équerres de fi xation (supports en V).
- Veillez à ce qu‘une circulation d‘air continue soit possible entre la paroi arrière et le plafond/mur.
- En règle générale, respectez une distance minimale de 60 cm dans toutes les directions par rapport aux zones des classes IP 44/65/67.
 |
3.5 Positionnement du récepteur | Le récepteur doit être positionné exclusivement en bordure du chau age ou fi xé au plafond de la pièce.
 | ATTENTION: NE PAS POSER LE RÉCEPTEUR AU MILIEU DE LA PAROI ARRIÈRE DU RADIATEUR ! RISQUE DE SURCHAUFFE |
|
| 
 - Retirez le fi lm de protection de la bande adhésive au dos du récepteur radio.
- Fixez le récepteur radio à l‘arrière du chau age infrarouge dans l‘une des quatre positions représentées.
- Veillez à ce que le côté sur lequel se trouve l‘élément de commande soit orienté vers l‘extérieur afi n de pouvoir utiliser le récepteur radio après le montage du chau age.
- Veillez à respecter une distance d‘au moins 2,5 cm par rapport aux supports en V afi n de pouvoir les tourner lors du montage du chau age.
- Appuyer sur le récepteur radio et s‘assurer qu‘il adhère sur toute sa surface au dos.
|
3.6 Monter le chau age | | Outils recommandés |  A Perceuse électrique à percussion ou visseuse sans fi l B Cutter ou couteau à tapis C Crayon ou stylo à bille D Marteau E Clé de 8 mm (à fourche ou à œil) F Clé de 10 mm (à fourche ou à œil) G Mèche de 8 mm adaptée au matériau de votre mur ou plafond | | Gabarit de montage | Utilisez le gabarit de montage fourni pour déterminer l‘emplacement des trous de perçage pour le montage du produit sur le mur ou le plafond. Respectez impérativement les exigences relatives au lieu d‘installation et les distances minimales requises (voir point 3.4). En cas de montage au mur, nous recommandons l‘utilisation d‘un niveau à bulle pour une position de montage d‘aplomb.
| Montage
 | 1 Commencez par percer les trous nécessaires avec une mèche de 8 mm adaptée au matériau de votre mur ou de votre plafond, aux positions marquées précédemment. Pour les chau ages d‘une longueur maximale de 119,2 cm, percez 4 trous. Pour les chau ages d‘une longueur supérieure à 120,0 cm, percez 6 trous.
Le gabarit de perçage fourni vous indique le nombre de trous à percer. Veillez à positionner correctement les trous de perçage pour un montage optimal des supports muraux (supports en V) qui seront vissés ultérieurement. |  | Utilisez (dans la mesure où ils sont adaptés au matériau de votre mur ou de votre plafond) les chevilles, les vis à clé et les rondelles fournies dans le « kit de fi xation standard » livré avec le chau age - comme illustré à gauche. 2 Insérez les chevilles dans les trous (si nécessaire, frappez-les avec un marteau) et vissez les vis avec les rondelles à l‘aide d‘une clé de 10 mm. Ne serrez pas complètement les vis. Laissez un espace de 4 mm entre la rondelle et le mur ou le plafond.
3 Vérifi ez si tous les supports muraux (supports en V) de votre chau age sont orientés avec l‘ouverture dans la même direction. Si ce n‘est pas le cas, alignez les supports en V de manière uniforme dans une seule di rection. La direction n‘a pas d‘importance.

Dans le cas d‘une fi xation au plafond, faites-vous aider par une deuxiè- me personne lors de l‘étape suivante du montage. Prévoyez une échelle (si nécessaire).
4 Soulevez le chau age en position de montage de sorte que les ouver- tures des supports en V se trouvent juste devant les vis déjà vissées à distance. vis se trouvent. |  |
| 5 Poussez le chau age latéralement jusqu‘à ce que les vis soient complè- tement insérées dans les supports en V. Faites attention aux rondelles. 6 Bloquez le chau age en tournant le support en V de 180º : |  |
| Montage mural: Tourner n‘importe quel „support en V. | Montage au plafond: tourner deux „supports en V“ quelconques. |
| 7 Serrez toutes les 8 ou 12 vis avec les deux clés de 8 et 10 mm. Vérifi ez que le chau age est bien fi xé. |
|
Informations complémentaires :
Vous avez des questions qui n'ont pas encore été résolues ? Pas de problème ! Nous nous ferons un plaisir de vous aider : contacter ecofort.